Alle woningen beschikken over

  • Entreehal
  • Woonkamer met open keuken
  • Twee slaapkamers
  • Badkamer en apart toilet
  • Berging
  • Inpandig balkon

Plattegrond complex

Plattegrond appartementencomplex Leestaete

Woningtypen

Type Aantal Bijzonderheden
Type A 18 De "wybertjes" — woonkamer en balkon op het westen, uitzicht op kanaal en fietspad
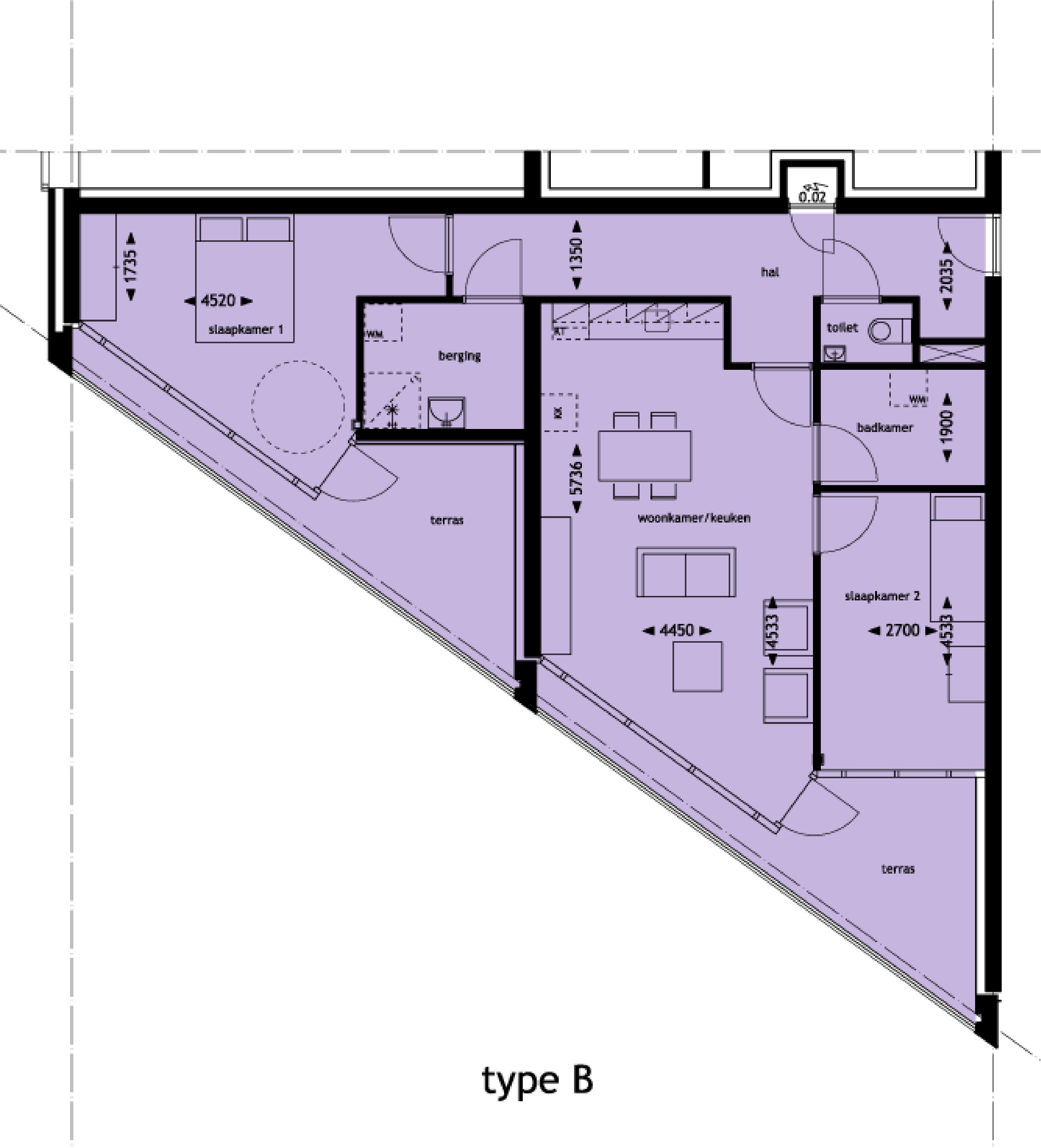
Type B 1 Slaapkamers aan de hoofdweg, woonkamer op het zuidwesten met uitzicht op kanaal
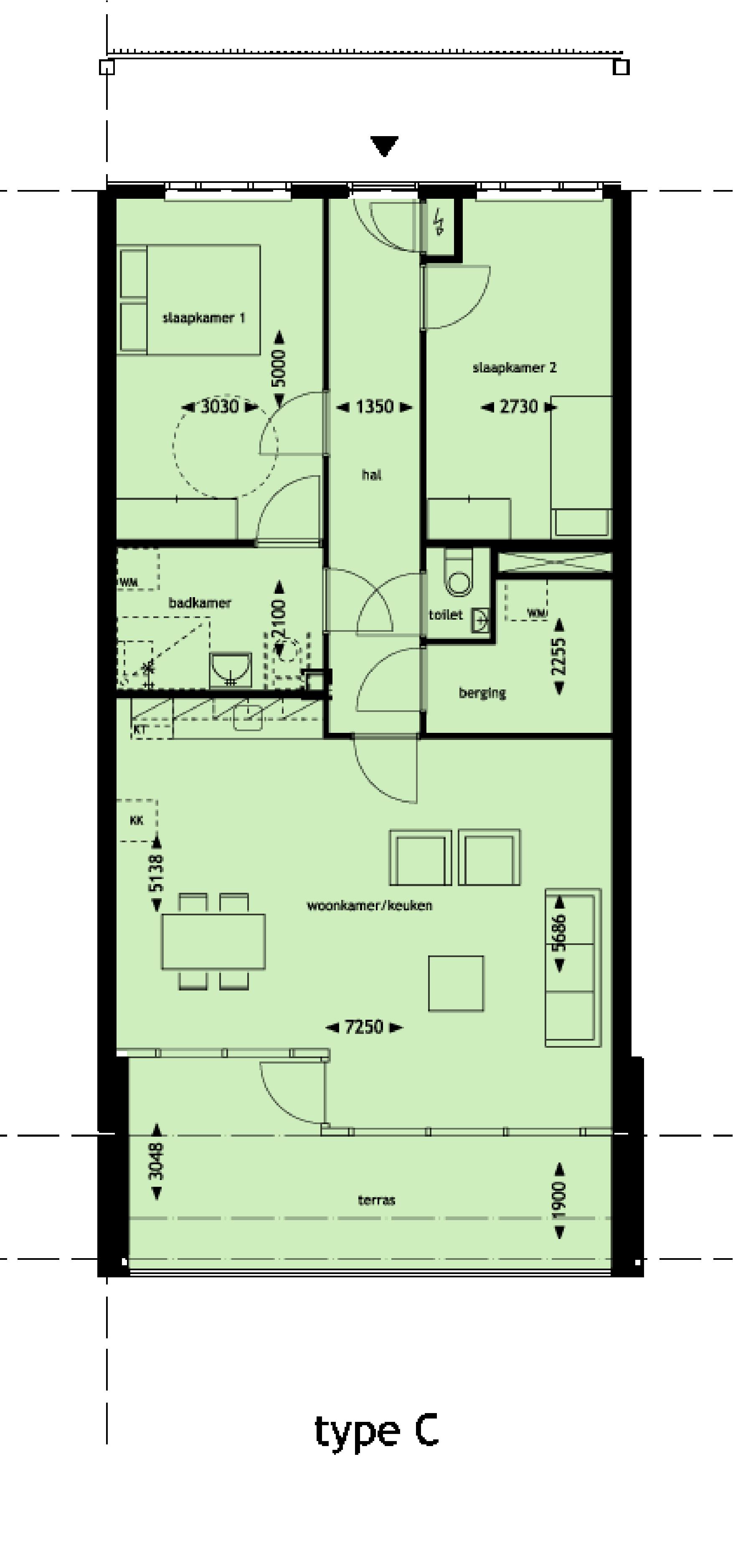
Type C 16 Iets groter; 8 met woonkamer op het oosten, 8 met woonkamer op het zuidwesten
Type D 2 Slaapkamers aan de hoofdweg, woonkamer en balkon op het zuidwesten
Type E 2 Slaapkamers aan de hoofdweg, woonkamer en balkon op het zuidwesten

Plattegronden per type

Plattegrond woningtype A
Type A (18 woningen)
Plattegrond woningtype B
Type B (1 woning)
Plattegrond woningtype C
Type C (16 woningen)
Plattegrond woningtype D
Type D (2 woningen)
Plattegrond woningtype E
Type E (2 woningen)

Bewonersportaal

Voer het wachtwoord in voor toegang.